Appartamento in vendita a Mignanego (GE)

Rif: Via Trieste
Condividi Linkedin Whatsapp Stampa
€ 85.000
Appartamento
74 Mq
3 Vani
Classe energetica G
1 camera
1 bagno
Ascensore
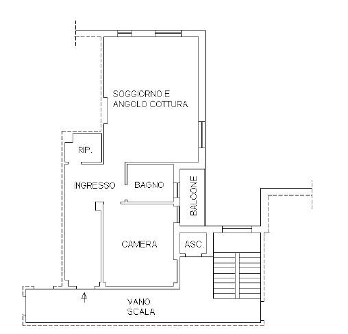
Mignanego - Via Trieste in ottimo stabile ordinato proponiamo in vendita ristrutturato appartamento di mq. 74 composto da ingresso, ampio open space con angolo cottura, camera da letto, bagno, ripostiglio e balcone. L'appartamento, posto al quarto e ultimo piano con ascensore, ha il riscaldamento centralizzato con termovalvole e il climatizzatore a pompa di calore. Euro 85.000 PER INFORMAZIONI AGENZIA BRUZZO PONTEDECIMO TEL. 010/71.47.88

Dettaglio immobile

Contratto Vendita
Rif Via Trieste
Prezzo € 85.000
Provincia Genova
Comune Mignanego
Indirizzo Via Trieste
Superficie 74 mq
Vani 3
Camere 1
Bagni 1
Classe energetica G (DL 192/2005)
EPI kwh/m2 anno
Piano 4 / 4
Livelli 1
Riscaldamento centralizzato
Condizioni ristrutturato
Ascensore si
Condizionamento si
Cucina angolo cottura
Soggiorno Doppio
Balcone si
Ultimo piano si
Occupazione al rogito libero

Richiedi maggiori informazioni

Autorizzazione al trattamento dei dati personali+
Dichiaro di aver letto l'informativa sulla privacy ed accetto le condizioni d'utilizzo del servizio.
Riempi il campo con il codice riportato nell'immagine*
Codice Captcha
FIAIP
Chiamaci Contattaci