Appartamento in vendita a Genova (GE) zona Pontedecimo

Rif: Via Del Canto
Condividi Linkedin Whatsapp Stampa
€ 129.000
Appartamento
85 Mq
6 Vani
Classe energetica G
2 Camere
1 bagno
Garage
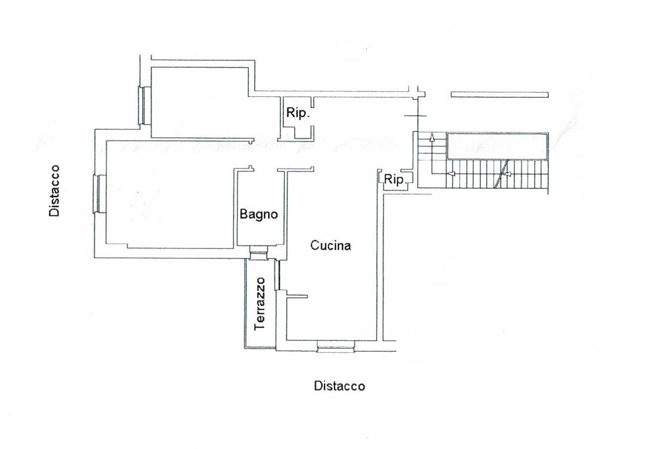
Pontedecimo - Via Felice Del Canto in un contesto tranquillo e strategico, a due passi dalla piazza, proponiamo in vendita luminoso vani 6 completamente ristrutturato e pronto per essere abitato. L'appartamento, situato al primo piano con ascensore, è composto da ingresso, soggiorno con cucinotto, 2 camere da letto, bagno, 2 ripostigli e balcone.
L'immobile è dotato di riscaldamento centralizzato e condizionatore, per un comfort climatico ideale in ogni stagione. Si trova in uno stabile in ottime condizioni, sia internamente che esternamente. Questa proprietà rappresenta una soluzione ideale per chi vuole un appartamento pronto per essere abitato senza dover affrontare lavori di ristrutturazione. Possibilità di acquistare un box di mq. 16 nei fondi del palazzo. Euro 129.000 PER INFORMAZIONI AGENZIA BRUZZO PONTEDECIMO TEL. 010/71.47.88

Dettaglio immobile

Contratto Vendita
Rif Via Del Canto
Prezzo € 129.000
Provincia Genova
Comune Genova
Zona Pontedecimo
Indirizzo Via Felice Del Canto 7
Superficie 85 mq
Vani 6
Camere 2
Bagni 1
Classe energetica G (DL 192/2005)
EPI kwh/m2 anno
Piano 1 / 6
Livelli 1
Riscaldamento centralizzato
Condizioni ristrutturato
Ascensore no
Garage 16 mq
Cucina cucinotto
Soggiorno Singolo
Balcone si
Occupazione al rogito libero

Richiedi maggiori informazioni

Autorizzazione al trattamento dei dati personali+
Dichiaro di aver letto l'informativa sulla privacy ed accetto le condizioni d'utilizzo del servizio.
Riempi il campo con il codice riportato nell'immagine*
Codice Captcha
FIAIP
Chiamaci Contattaci